設計服務

餐廳的獨特品牌形像

設計服務

雖說民以食為天,惟食客接觸餐廳的第一步不是食物,而是從門外開始,到內部所有與品牌緊扣的精心設計與佈局。讓食客萬分期待地進來點餐,悠然舒適地享用美食,滿心歡喜地結帳離開,依依不捨到再次光臨,這不但是每間餐廳的目標,也正是 Double Six 設計團隊為每間餐廳提供設計服務的承諾與原則。

門面及招牌設計
  • 一見傾心

門面及招牌設計

雖說民以食為天,惟食客接觸餐廳的第一步不是食物,而是從門外開始,到內部所有與品牌緊扣的精心設計與佈局。讓食客萬分期待地進來點餐,悠然舒適地享用美食,滿心歡喜地結帳離開,依依不捨到再次光臨,這不但是每間餐廳的目標,也正是 Double Six 設計團隊為每間餐廳提供設計服務的承諾與原則。

  • 利潤倍增

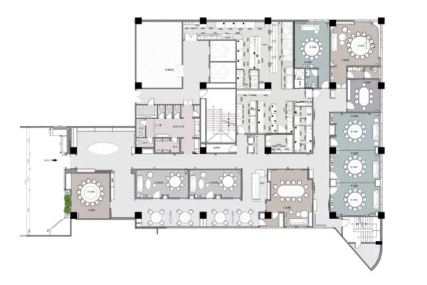
整體佈局設計

就餐廳的經營方向與目標,現場實際環境及餐飲相關牌照等因素,我們會妥善設計餐廳的整體佈局,包括廚房、出菜、食客坐位及收碗碟位置等。位置佈局合理,職員工作流程暢順,讓空間得到充份利用,即使在最繁忙時間也能應付最多食客,利潤自然倍增。

花禾牛浦东店(31)
內部造型設計
  • 耐用易潔

內部造型設計

我們擅於按照餐廳的品牌形象,預算及實際操作,設計出合適的內部造型,讓食客舒適之餘,也會選擇既美觀、耐用及易於清潔的物料,大大減少保養次數與開支,降低維修耗費的時間及成本。

  • 色香味全

天花及燈飾設計

餐廳的天花及燈飾設計重點不止在於照明,還能映襯出食物的外觀,食 物在合適的燈光下會更顯得色香味俱全。我們精於佈置餐廳天花造型與選擇合 適的燈具配套,讓餐廳的氣氛有感染力,食物上枱後增加食客的食慾,胃口大 開。同時也會平衡節能的考慮,妥善控制電費開支。
STUDIO-Campo烤肉
廚房設計
  • 耐用易潔

廚房設計

我們擅於按照餐廳的品牌形象,預算及實際操作,設計出合適的內部造型,讓食客舒適之餘,也會選擇既美觀、耐用及易於清潔的物料,大大減少保養次數與開支,降低維修耗費的時間及成本。

  • 突出形像

商標品牌設計

成功的餐廳商標品牌,令人一望而知其檔次、定位以至提供哪些地區的獨特菜色,而且用途甚廣,不但於餐廳門面,連餐牌、咭片、餐巾甚至牙簽套可以見到,也是在各媒體必備的宣傳原素。由我們設計出來的品牌商標,定必醒目搶眼,為餐廳打造別突出的形像與品牌,食客無論在任何地方見到商標品牌,腦海內必定再次浮現餐廳出品的美食,如臨其境。
young female designer working her laptop 23 2149142106